梅田パシフィックビル 東梅田 貸事務所/9階/183.2坪/[NO.K0441-07]

 
物件詳細  NO.K0441-07   印刷用
梅田パシフィックビル 外観
正面玄関
EVホール
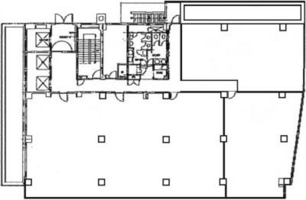
フロアー図面
▲クリックすると写真が拡大表示されます。

  建物概要
物件番号 K0441-07
種   別 事務所  <大通り沿い>
名   称 梅田パシフィックビル
所 在 地 大阪市北区曾根崎 2丁目 5-10
交   通 地下鉄谷町線「東梅田」駅 徒歩3分
地下鉄御堂筋線「梅田」駅 徒歩8分 ?>
竣工年月 昭和53年(1978) 11月  
構   造 SRC造   地上11階 /地下2階 建

  募集条件
階 / 号室 9階 / 敷 金 18.0ヶ月
契約面積 183.2坪 (605.62 u) 坪単価  
実効面積 183.2坪(605.62u) 敷 引 全額返還 
賃料 相談 原状回復 要 
坪単価 相談

駐車場 有 
共益費 相談 保証金
坪単価 相談 月額
合計 相談 敷引
※上記表示条件は募集価格です。詳細についてはお問い合わせください。
※金額はすべて税込表示です。

  備  考
☆ お気軽にお問合せ下さいませ ☆

★ 実効面積です
★ 共用部リニューアル済み(平成16年) 

  設  備
エレベーター 有 3基 オートロック
光ファイバー 有 共用部分引込済み 24時間使用 可能 
セキュリティ 機械警備 日祝使用 可能 
OAフロアー 施工済  天井高 2.45m
管理人 空調 個別空調 
貸会議室    
 

  その他空室
坪数賃料共益費 月額合計 詳細
7 階  25.86 坪  お問い合わせください。 詳細
11 階  31.76 坪  お問い合わせください。 詳細
8 階  45.63 坪  お問い合わせください。 詳細
4 階  49.93 坪  お問い合わせください。 詳細
4 階  54.48 坪  お問い合わせください。 詳細
3 階  186.87 坪  お問い合わせください。 詳細

物件番号NO.K0441-07 この物件のお問い合わせは

大阪府知事(3)第54689号
株式会社ワークス・リアルエステート
大阪府大阪市淀川区西中島5-6-13  新大阪御幸ビル2F
TEL 06-6305-1919 FAX 06-6305-6262
     ※電話でお問合せの際は、「オフィスNo1を見て」とお伝えいただくと
       話がスムーズに進みます。
E-mail:works@shin-osaka.info  取引態様:媒介
  

免責事項
※掲載中に成約済・募集取り止めになる場合がございますので予めご了承ください。
※貸主の希望により賃貸条件が問合せになっている物件がございますので,金額についてはお問合せください。
※当サイトの内容ならびに金額その他項目に掲載過ちがある場合はご容赦ください。判明次第すぐ訂正致します。

大阪 貸事務所・賃貸オフィス 検索