|
|
|
| 物件詳細 NO.C0827-01 |
 |
|
▲クリックすると写真が拡大表示されます。
|
| 建物概要 |
| 物件番号 |
C0827-01 |
| 種 別 |
事務所
<大通り沿い> |
| 名 称 |
船場フジイビル |
| 所 在 地 |
大阪市中央区南久宝寺町 2丁目
2-9 |
| 交 通 |
地下鉄堺筋線「堺筋本町」駅 徒歩4分
地下鉄御堂筋線「本町」駅 徒歩10分 ?> |
| 竣工年月 |
昭和58年(1983)
2月
|
| 構 造 |
SRC造
地上10階
/地下1階
建 |
| 募集条件 |
| 階 /
号室 |
4階 / |
保証金 |
10.0ヶ月 |
| 契約面積 |
153.08坪 (506.05 u) |
坪単価 |
|
| 実効面積 |
153.08坪(506.05u) |
敷 引 |
|
| 賃料 |
¥1,515,492 |
原状回復 |
|
| 坪単価 |
@9,900 |
駐
車
場 |
駐車場 |
有 |
| 共益費 |
¥505,164 |
保証金 |
|
| 坪単価 |
@3,300 |
月額 |
|
| 合計 |
¥2,020,656 |
敷引 |
|
※上記表示条件は募集価格です。詳細についてはお問い合わせください。
※金額はすべて税込表示です。 |
| 備 考 |
★諸条件相談可能です!
☆お気軽にお問い合わせ下さい!
|
| 設 備 |
| エレベーター |
有 3基 |
オートロック |
無 |
| 光ファイバー |
有 共用部分引込済み |
24時間使用 |
可能 |
| セキュリティ |
機械警備 |
日祝使用 |
可能 |
| OAフロアー |
施工済 |
天井高 |
- |
| 管理人 |
無 |
空調 |
個別空調 |
| 貸会議室 |
無 |
|
|
|
|
| その他空室 |
| 階 | 坪数 | 賃料 | 共益費 |
月額合計 |
詳細 |
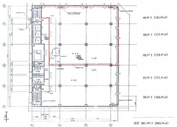
| 4 階 |
48.9 坪 |
484,110 円 |
161,370 円 |
645,480 円 |
詳細 |
物件番号NO.C0827-01 この物件のお問い合わせは
大阪府知事(3)第54689号 株式会社ワークス・リアルエステート
大阪府大阪市淀川区西中島5-6-13 新大阪御幸ビル2F
TEL 06-6305-1919 FAX 06-6305-6262
※電話でお問合せの際は、「オフィスNo1を見て」とお伝えいただくと
話がスムーズに進みます。
E-mail:works@shin-osaka.info 取引態様:媒介 |

|
|
免責事項
※掲載中に成約済・募集取り止めになる場合がございますので予めご了承ください。
※貸主の希望により賃貸条件が問合せになっている物件がございますので,金額についてはお問合せください。
※当サイトの内容ならびに金額その他項目に掲載過ちがある場合はご容赦ください。判明次第すぐ訂正致します。
|
|