モリロンビル 谷町四丁目 貸事務所/3階/12.5坪/[NO.C0823-01]

 
物件詳細  NO.C0823-01   印刷用
モリロンビル 外観
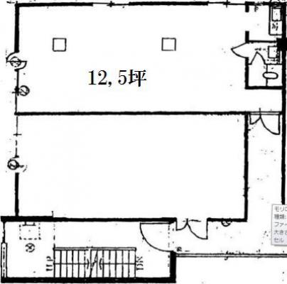
フロアー図面
▲クリックすると写真が拡大表示されます。

  建物概要
物件番号 C0823-01
種   別 事務所 
名   称 モリロンビル
所 在 地 大阪市中央区内久宝寺町 4丁目 2-10
交   通 地下鉄谷町線「谷町四丁目」駅 徒歩6分
地下鉄谷町線「谷町六丁目」駅 徒歩6分 ?>
竣工年月 昭和52年(1977) 3月  
構   造 鉄骨造   地上4階 建

  募集条件
階 / 号室 3階 /320 保証金 ¥500,000
契約面積 12.5坪 (41.32 u) 坪単価 ¥40,000 
実効面積 - 解約引 ¥550,000 
賃料 ¥77,000 原状回復  
坪単価 @6,160

駐車場 有 
共益費 込み 保証金
坪単価 込み 月額
合計 ¥77,000 敷引
※上記表示条件は募集価格です。詳細についてはお問い合わせください。
※金額はすべて税込表示です。

  備  考
☆ お気軽に、お問合せください ☆
◆ お客様の希望条件に合う資料を、お送りさせて頂きます ◆

★ 表示は募集条件です。 条件交渉お任せください !! 

  設  備
エレベーター 有 1基 オートロック
光ファイバー 有 共用部分引込済み 24時間使用 可能 
セキュリティ 日祝使用 可能 
OAフロアー 無  天井高 -
管理人 空調 個別空調 
貸会議室    
 

物件番号NO.C0823-01 この物件のお問い合わせは

大阪府知事(3)第54689号
株式会社ワークス・リアルエステート
大阪府大阪市淀川区西中島5-6-13  新大阪御幸ビル2F
TEL 06-6305-1919 FAX 06-6305-6262
     ※電話でお問合せの際は、「オフィスNo1を見て」とお伝えいただくと
       話がスムーズに進みます。
E-mail:works@shin-osaka.info  取引態様:媒介
  

免責事項
※掲載中に成約済・募集取り止めになる場合がございますので予めご了承ください。
※貸主の希望により賃貸条件が問合せになっている物件がございますので,金額についてはお問合せください。
※当サイトの内容ならびに金額その他項目に掲載過ちがある場合はご容赦ください。判明次第すぐ訂正致します。

大阪 貸事務所・賃貸オフィス 検索