ACN天満橋ビル(大手前ヒオビル) 天満橋 貸事務所/6階/32.53坪/[NO.C0591-03]

  エントランス・外装リニューアルしました。
物件詳細  NO.C0591-03   印刷用
ACN天満橋ビル(大手前ヒオビル) 外観
エントランス
EV
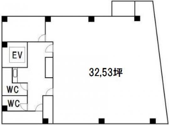
図面
▲クリックすると写真が拡大表示されます。

  建物概要
物件番号 C0591-03
種   別 事務所  <大通り沿い>
名   称 ACN天満橋ビル(大手前ヒオビル)
所 在 地 大阪市中央区谷町 1丁目 4-3
交   通 京阪本線「天満橋」駅 徒歩1分
地下鉄谷町線「谷町四丁目」駅 徒歩5分 ?>
竣工年月 平成10年(1998) 8月  
構   造 鉄骨造   地上10階 /地下1階 建

  募集条件
階 / 号室 6階 / 保証金 8.0ヶ月
契約面積 32.53坪 (107.54 u) 坪単価  
実効面積 - 解約引 2.0ヶ月(+消費税) 
賃料 相談 原状回復  
坪単価 相談

駐車場  
共益費 相談 保証金
坪単価 相談 月額
合計 相談 敷引
※上記表示条件は募集価格です。詳細についてはお問い合わせください。
※金額はすべて税込表示です。

  備  考
★ 諸条件相談可
★ 水道代・警備費は共益費に含みます

 

  設  備
エレベーター 有 1基 オートロック
光ファイバー 有  24時間使用 可能 
セキュリティ 機械警備 日祝使用 可能 
OAフロアー 無  天井高 -
管理人 空調 個別空調 
貸会議室    
 

  その他空室
坪数賃料共益費 月額合計 詳細
6 階  21.1 坪  お問い合わせください。 詳細

物件番号NO.C0591-03 この物件のお問い合わせは

大阪府知事(3)第54689号
株式会社ワークス・リアルエステート
大阪府大阪市淀川区西中島5-6-13  新大阪御幸ビル2F
TEL 06-6305-1919 FAX 06-6305-6262
     ※電話でお問合せの際は、「オフィスNo1を見て」とお伝えいただくと
       話がスムーズに進みます。
E-mail:works@shin-osaka.info  取引態様:媒介
  

免責事項
※掲載中に成約済・募集取り止めになる場合がございますので予めご了承ください。
※貸主の希望により賃貸条件が問合せになっている物件がございますので,金額についてはお問合せください。
※当サイトの内容ならびに金額その他項目に掲載過ちがある場合はご容赦ください。判明次第すぐ訂正致します。

大阪 貸事務所・賃貸オフィス 検索