シティコート新大阪 西中島南方 貸事務所/2階/13.39坪/[NO.H0016-01]

  敷金・礼金0円!初期費用をおさえて起業の方に!
物件詳細  NO.H0016-01   印刷用
シティコート新大阪 外観
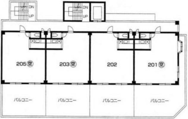
図面
▲クリックすると写真が拡大表示されます。

  建物概要
物件番号 H0016-01
種   別 事務所 
名   称 シティコート新大阪
所 在 地 大阪市東淀川区東中島 1丁目 7-22
交   通 地下鉄御堂筋線「西中島南方」駅 徒歩8分
JR東海道本線「新大阪」駅 徒歩9分 ?>
竣工年月 平成2年(1990)  
構   造 鉄骨造   地上10階 /地下1階 建

  募集条件
階 / 号室 2階 /202 敷 金
契約面積 13.39坪 (44.26 u) 坪単価  
実効面積 - 礼 金 円 
賃料 ¥110,000 原状回復 - 
坪単価 @8,215

駐車場 無 
共益費 込み 保証金
坪単価 込み 月額 ¥21,000
合計 ¥110,000 敷引
※上記表示条件は募集価格です。詳細についてはお問い合わせください。
※金額はすべて税込表示です。

  備  考
★ 拡大移転 ・ 経費削減 ・ 環境改善 ・ 当社にお任せ下さい!!

☆ お気軽にお問合せください ☆
★ 条件交渉お任せください !!
★ 表示は募集条件です( 税込 )
★ 敷金礼金 0円!( 賃貸保証加入要 ) 

  設  備
エレベーター 有 1基 オートロック
光ファイバー 有 共用部分引込済み 24時間使用 可能 
セキュリティ 日祝使用 可能 
OAフロアー 無  天井高 -
管理人 空調 個別空調 
貸会議室    
 

物件番号NO.H0016-01 この物件のお問い合わせは

大阪府知事(3)第54689号
株式会社ワークス・リアルエステート
大阪府大阪市淀川区西中島5-6-13  新大阪御幸ビル2F
TEL 06-6305-1919 FAX 06-6305-6262
     ※電話でお問合せの際は、「オフィスNo1を見て」とお伝えいただくと
       話がスムーズに進みます。
E-mail:works@shin-osaka.info  取引態様:媒介
  

免責事項
※掲載中に成約済・募集取り止めになる場合がございますので予めご了承ください。
※貸主の希望により賃貸条件が問合せになっている物件がございますので,金額についてはお問合せください。
※当サイトの内容ならびに金額その他項目に掲載過ちがある場合はご容赦ください。判明次第すぐ訂正致します。

大阪 貸事務所・賃貸オフィス 検索