穂波26-倉庫・事務所 吹田市 貸倉庫/1〜2階/112.83坪/[NO.SO0358-01]

  大通り沿い(フラワーロード)の、約113坪の2階建て倉庫・事務所です。*駐車場あり(約5台分可能)
物件詳細  NO.SO0358-01   印刷用
穂波26-倉庫・事務所 外観
建物前南側道路幅員約16.5m
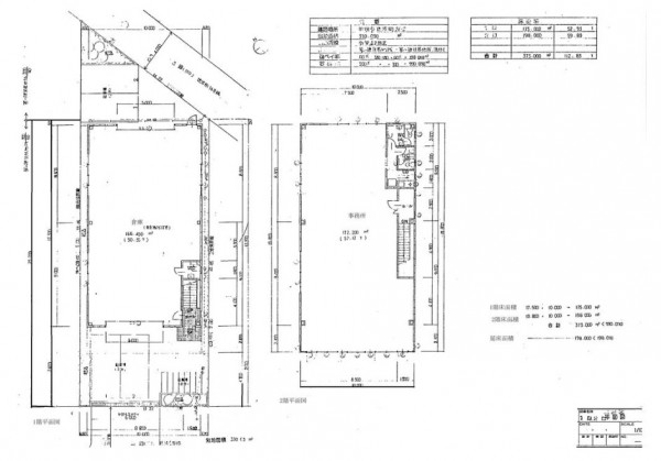
立面図・断面図
平面図
▲クリックすると写真が拡大表示されます。

  建物概要
物件番号 SO0358-01
種   別 倉庫  <2階建倉庫兼事務所><大通り沿い>
名   称 穂波26-倉庫・事務所
所 在 地 吹田市穂波町
用途地域 第二種住居地域
接   道 建物前南側道路幅員約16.5m
交   通 JRおおさか東線「南吹田」駅 徒歩11分
阪急千里線「吹田」駅 徒歩13分 ?>
竣工年月 平成8年(1996) 9月  
構   造 鉄骨造   地上2階 建

  募集条件
階 / 号室 1〜2階 / 敷 金 ¥4,680,000
使用面積 112.83坪 (373.0 u) 坪単価 ¥41,478 
土地面積 - 礼 金 ¥1,716,000 
賃料 ¥858,000 原状回復 要 
坪単価 @7,604

駐車場 有 
共益費 ¥0 保証金
坪単価 @0 月額 駐車スペースあり(込み)5台分
合計 ¥858,000 敷引
※上記表示条件は募集価格です。詳細についてはお問い合わせください。
※金額はすべて税込表示です。

  備  考
使用開始日:現在、入居中の為➡R6年4月(応相談)

火災保険・借家人賠償付要

賃貸保証会社加入契約要(別途保証料必要・総賃料の1ヶ月分・年更新総賃料の10%)保証会社により少々変動致します。

仲介手数料・賃料の1ヶ月分+消費税 

  設  備
エレベーター オートロック
光ファイバー 24時間使用
セキュリティ 日祝使用
OAフロアー 無  天井高 -
管理人 空調
貸会議室    
・軽作業可能
トイレ有り

1階:175.00u(約52.94坪)
2階:198.00u(約59.89坪)

延べ床面積:373.00u(約112.83坪) 

物件番号NO.SO0358-01 この物件のお問い合わせは

大阪府知事(3)第54689号
株式会社ワークス・リアルエステート
大阪府大阪市淀川区西中島5-6-13  新大阪御幸ビル2F
TEL 06-6305-1919 FAX 06-6305-6262
     ※電話でお問合せの際は、「オフィスNo1を見て」とお伝えいただくと
       話がスムーズに進みます。
E-mail:works@shin-osaka.info  取引態様:媒介
  

免責事項
※掲載中に成約済・募集取り止めになる場合がございますので予めご了承ください。
※貸主の希望により賃貸条件が問合せになっている物件がございますので,金額についてはお問合せください。
※当サイトの内容ならびに金額その他項目に掲載過ちがある場合はご容赦ください。判明次第すぐ訂正致します。

大阪 貸事務所・賃貸オフィス 検索