南久宝寺3丁目−工場・倉庫 八尾市 貸倉庫/1階/83.35坪/[NO.YO0062-01]

  ★駅近物件、徒歩約4分★1階部分の部分貸し約83坪の倉庫 *隣接地8台分駐車場可能
物件詳細  NO.YO0062-01   印刷用
南久宝寺3丁目−工場・倉庫 外観
倉庫内@
共用通路
建物前南側道路幅員約6m
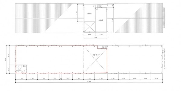
配置図
図面
▲クリックすると写真が拡大表示されます。

  建物概要
物件番号 YO0062-01
種   別 倉庫 
名   称 南久宝寺3丁目−工場・倉庫
所 在 地 八尾市南久宝寺 3丁目
用途地域 準工業地域
接   道 建物前南側道路幅員約6m
交   通 JR関西本線「久宝寺」駅 徒歩4分 ?>
竣工年月 昭和54年(1979) 2月  
構   造 鉄骨造 1階の部分貸し  地上2階 建

  募集条件
階 / 号室 1階 / 敷 金 4.0ヶ月
使用面積 83.35坪 (275.54 u) 坪単価  
土地面積 532.32坪(1759.74u) 礼 金 2.0ヶ月 
賃料 ¥412,500 原状回復 要 
坪単価 @4,949

駐車場 有 
共益費 ¥0 保証金
坪単価 @0 月額 隣接地駐車場8台分
合計 ¥412,500 敷引
※上記表示条件は募集価格です。詳細についてはお問い合わせください。
※金額はすべて税込表示です。

  備  考
入居時期:R5/11月(応相談)

★契約期間:2年

★隣接地に8台分駐車可能

★共益費:なし  ★管理費:なし

火災保険・借家人賠償付要

賃貸保証会社加入契約要(初回別途保証料必要総賃料の1ヶ月分・年間更新料:なし)保証会社により少々変動致します。

仲介手数料・賃料の1ヶ月分+消費税 

  設  備
エレベーター オートロック
光ファイバー 24時間使用
セキュリティ 日祝使用
OAフロアー 無  天井高 -
管理人 空調
貸会議室    
・軽作業可能
2階建ての1階部分の部分貸し【B区画】
1階一部倉庫:275.54u(約83.35坪)

土地面積:1759.74u(約532.32坪)

*トイレ有り 

  その他空室
坪数賃料共益費 月額合計 詳細
1 階  83.35 坪  412,500 円  0 円  412,500 円  詳細

物件番号NO.YO0062-01 この物件のお問い合わせは

大阪府知事(3)第54689号
株式会社ワークス・リアルエステート
大阪府大阪市淀川区西中島5-6-13  新大阪御幸ビル2F
TEL 06-6305-1919 FAX 06-6305-6262
     ※電話でお問合せの際は、「オフィスNo1を見て」とお伝えいただくと
       話がスムーズに進みます。
E-mail:works@shin-osaka.info  取引態様:媒介
  

免責事項
※掲載中に成約済・募集取り止めになる場合がございますので予めご了承ください。
※貸主の希望により賃貸条件が問合せになっている物件がございますので,金額についてはお問合せください。
※当サイトの内容ならびに金額その他項目に掲載過ちがある場合はご容赦ください。判明次第すぐ訂正致します。

大阪 貸事務所・賃貸オフィス 検索