貸倉庫/1〜2階/34.84坪/[NO.KYT0002-01]

  建物前に駐車スペースあり 約2台駐車可能 工業地域 電動シャッター コンパクトオフィス
物件詳細  NO.KYT0002-01   印刷用
外観
1階倉庫内
2階事務所スペース
建物前西側道路幅員約10.5m
駐車スペース
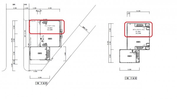
1階〜2階 図面
▲クリックすると写真が拡大表示されます。

  建物概要
物件番号 KYT0002-01
種   別 倉庫  <2階建倉庫兼事務所>
所 在 地 京都市右京区西京極東大丸町
用途地域 工業地域
接   道 建物前西側道路幅員約10.5m
交   通 阪急京都線「西京極」駅 徒歩5分 ?>
竣工年月 平成17年(2005) 8月  
構   造 鉄骨造 ALC  地上2階 建

  募集条件
階 / 号室 1〜2階 / 保証金 ¥2,800,000
使用面積 34.84坪 (115.2 u) 坪単価 ¥80,367 
土地面積 - 解約引 ¥924,000 
賃料 ¥308,000 原状回復 要 
坪単価 @8,840

駐車場 有 
共益費 込み 保証金
坪単価 込み 月額 建物前に駐車スペースあり(込み)
合計 ¥308,000 敷引
※上記表示条件は募集価格です。詳細についてはお問い合わせください。
※金額はすべて税込表示です。

  備  考
*今現況使用中
*使用開始日2022年3月上旬予定
*火災保険加入(借家人賠償)付要
*賃貸保証会社加入契約をお願いする場合がございます
*仲介手数料・賃料の1ヶ月+消費税 

  設  備
エレベーター オートロック
光ファイバー 24時間使用
セキュリティ 日祝使用
OAフロアー 無  天井高 -
管理人 空調
貸会議室    
*1階:54.00u(約16.33坪)倉庫
*2階:61.20u(約18.51坪)事務所
*合計面積1階〜2階:約115.20u(約34.84坪)
*駐車スペース建物前空地に約2台可能
*工業地域
*電動シャッター(高さ約2.7m 幅約3.6m)
*2階事務所(トイレ・給湯室)
*水道代・定額/月1,650円 

物件番号NO.KYT0002-01 この物件のお問い合わせは

大阪府知事(3)第54689号
株式会社ワークス・リアルエステート
大阪府大阪市淀川区西中島5-6-13  新大阪御幸ビル2F
TEL 06-6305-1919 FAX 06-6305-6262
     ※電話でお問合せの際は、「オフィスNo1を見て」とお伝えいただくと
       話がスムーズに進みます。
E-mail:works@shin-osaka.info  取引態様:媒介
  

免責事項
※掲載中に成約済・募集取り止めになる場合がございますので予めご了承ください。
※貸主の希望により賃貸条件が問合せになっている物件がございますので,金額についてはお問合せください。
※当サイトの内容ならびに金額その他項目に掲載過ちがある場合はご容赦ください。判明次第すぐ訂正致します。

大阪 貸事務所・賃貸オフィス 検索