第8新大阪ビル 新大阪 貸事務所/5階/13.99坪/[NO.Y0099-03]

 
物件詳細  NO.Y0099-03   印刷用
第8新大阪ビル 外観
EV
エントランス1
エントランス2
内観写真
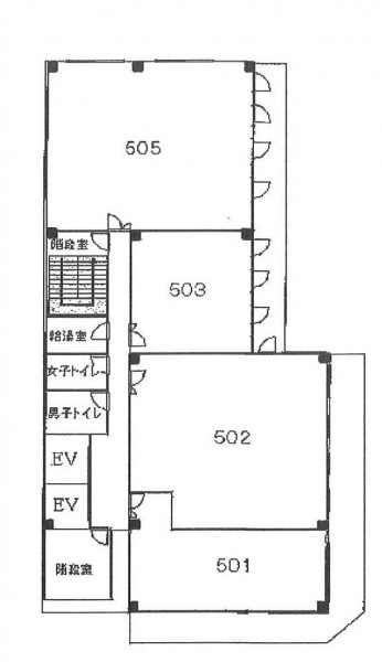
フロアー図面
▲クリックすると写真が拡大表示されます。

  建物概要
物件番号 Y0099-03
種   別 事務所 
名   称 第8新大阪ビル
所 在 地 大阪市淀川区西中島 5丁目 7-11
交   通 地下鉄御堂筋線「新大阪」駅 徒歩4分
地下鉄御堂筋線「西中島南方」駅 徒歩5分 ?>
竣工年月 昭和62年(1987) 7月  
構   造 鉄骨造   地上8階 /地下1階 建

  募集条件
階 / 号室 5階 /501 保証金 ¥680,000
契約面積 13.99坪 (46.25 u) 坪単価 ¥48,606 
実効面積 13.99坪(46.25u) 敷 引 ¥275,000 
賃料 ¥98,901 原状回復 要 
坪単価 @7,069

駐車場 無 
共益費 ¥39,600 保証金
坪単価 @2,831 月額
合計 ¥138,501 敷引
※上記表示条件は募集価格です。詳細についてはお問い合わせください。
※金額はすべて税込表示です。

  備  考
★ 拡大移転 ・ 経費削減 ・ 環境改善 ・ 当社にお任せ下さい!!
☆ 空室状況 ・ 詳細は、お気軽にお問合せください
☆ 表示は正規の募集条件( 税込定価 )です

★ 条件交渉お任せ下さい !!
★ 電気基本料及び電気使用料別途必要 

  設  備
エレベーター 有 2基 オートロック
光ファイバー 有 共用部分引込済み 24時間使用 可能 
セキュリティ 機械警備 日祝使用 可能 
OAフロアー 無  天井高 -
管理人 空調 個別空調 
貸会議室    
★ トイレ( 男女別 ・ 洋式 ) 

物件番号NO.Y0099-03 この物件のお問い合わせは

大阪府知事(3)第54689号
株式会社ワークス・リアルエステート
大阪府大阪市淀川区西中島5-6-13  新大阪御幸ビル2F
TEL 06-6305-1919 FAX 06-6305-6262
     ※電話でお問合せの際は、「オフィスNo1を見て」とお伝えいただくと
       話がスムーズに進みます。
E-mail:works@shin-osaka.info  取引態様:媒介
  

免責事項
※掲載中に成約済・募集取り止めになる場合がございますので予めご了承ください。
※貸主の希望により賃貸条件が問合せになっている物件がございますので,金額についてはお問合せください。
※当サイトの内容ならびに金額その他項目に掲載過ちがある場合はご容赦ください。判明次第すぐ訂正致します。

大阪 貸事務所・賃貸オフィス 検索